Пропозиція на продаж: №1828
Дата надходження: 25/10/2007

Об`єкт продажу:Здание под супермаркет в г.Судак
Призначення:Торгова нерухомість
Регіон України:Автономна Республіка Крим
Продаж повністю та/або частинами:100%
Вартість Об`єкту:2 000 000 USD
Призначення (можливі варіанти використання):Торговля
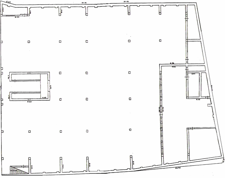
Загальний опис (загальна/корисна площа стан):Здание, 2 этажа + цоколь. Площадь 1-го этажа – 1 184,6 кв.м., высота потолков - 4,25 м. Площадь 2-го этажа – 1 257 кв.м., высота потолков - 3,90 м. Площадь цокольного этажа - 1402,6 кв.м., высота потолков - 3 м. и 4,8 м. Недострой. Готовность - 70%.
Фотографії:


Контактна особа: Игорь Александрович
Тел.: (044)492-98-78, 492-98-79
E-mail: igor@agbiz.kiev.ua